apartament z balkonem, tramwaj, zielono

lokalizacja: Poznań, Naramowicka

427 670,00 PLN

12 013,20 PLN

Opis nieruchomości

Ogłoszenie sprzedaży apartamentu z balkonem w Poznaniu, na styku Naramowic i Winograd




  • Bezpośrednio od dewelopera

  • Brak PCC

  • Bez prowizji



Zadzwoń i umów się na obejrzenie inwestycji +48798601102


Lokalizacja


Naramowice, to doskonale miejsce, jeśli cenisz sobie bliskość przyrody i dostęp do miejskich udogodnień.

Zakola Warty, to tylko klika minut spacerem.

W pobliżu:
sklepy, restauracje, urocze knajpki i punkty usługowe.

W najbliższej okolicy znajdują się szkoły i przedszkola.
Dzięki powstaniu nowej linii tramwajowej, komunikacja z centrum miasta jest szybka i sprawna.



  • autobus - 1 minuta

  • tramwaj - 3 minuty

  • przychodnia - 5 minut

  • tereny zielone - 5 minut

  • szkoła - 5 minut

  • sklepy - 1 minut





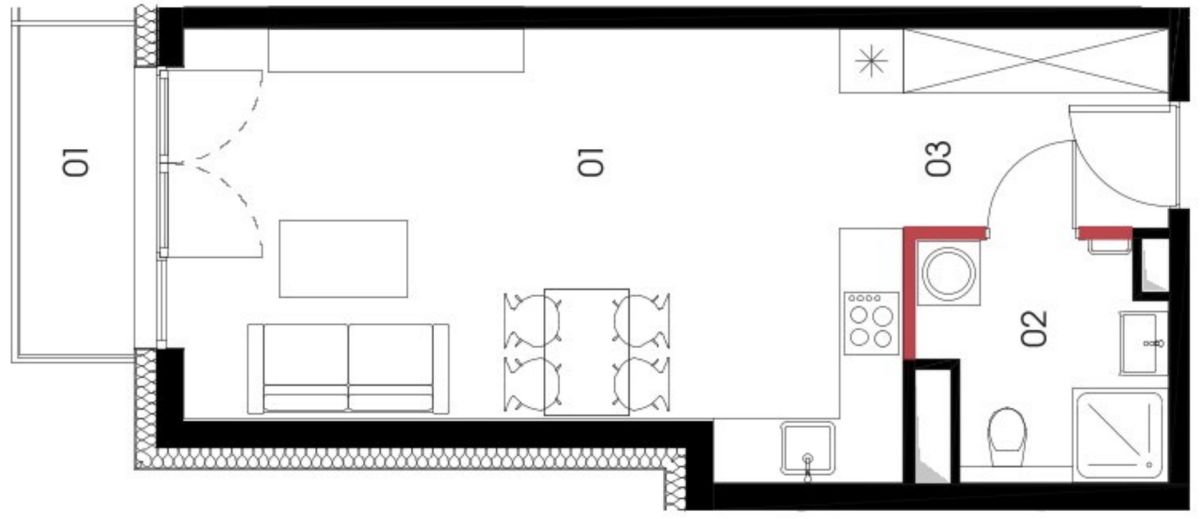
Układ mieszkania



  • salon + aneks kuchenny - 26,07 m2

  • łazienka - 4,83 m2

  • przedpokój - 4,70 m2

  • balkon - 3,35 m2



(zdjęcia dodane go ogłoszenia, są
zdjęciami poglądowymi)



w inwestycji



  • windy

  • domofon

  • rowerownia

  • CO miejskie




To miejsce, które daje Ci spokój, komfort i codzienną wygodę.



Termin oddania: II kwartał 2026


Spełnij marzenia o nowym mieszkaniu.
Zainteresowany? Zadzwoń, napisz

Zadzwoń i umów się na obejrzenie inwestycji 

Monika Skotarczak. +48798601102

ZERO prowizji, brak PCC

...
Oferta wystawiona przez Biuro nieruchomości Falcon Estate.
Prezentowane w serwisie oferty nie stanowią oferty handlowej w rozumieniu art. 66 Kodeksu Cywilnego i mogą być nieaktualne.

Plan Nieruchomości

Kontakt do opiekuna:

Falcon Estate

Monika Skotarczak
Nieprawidłowy adres E-mail
Mapa

Strona korzysta z plików cookie w celu realizacji usług zgodnie z Polityką prywatności. Możesz określić warunki przechowywania lub dostępu do cookie w Twojej przeglądarce.