3 pokoje z balkonem, tereny zielone, autobus

lokalizacja: Poznań, Jasielska

581 603,00 PLN

10 590,00 PLN

Opis nieruchomości

Ogłoszenie sprzedaży 3 pokojowego mieszkania z balkonem w stanie deweloperskim w Poznaniu

Promocja noworoczna


Zadzwoń i umów się na obejrzenie inwestycji +48798601102




  • Bezpośrednio od dewelopera

  • Brak PCC

  • Bez prowizji







Lokalizacja

Podolany, to lokalizacja zapewniająca bliskość terenów zielonych a jednocześnie jest dobrze skomunikowana z centrum.



  • autobus - 1 minuta

  • przychodnia - 5 minut

  • tereny zielone - 5 minut

  • szkoła - 5 minut

  • sklepy - 1 minuta








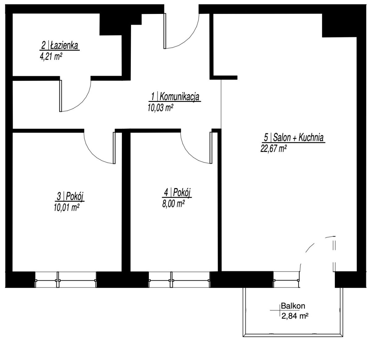
Układ mieszkania



  • salon + kuchnia - 22,67 m2

  • pokój - 10,01 m2

  • pokój - 8,00 m2

  • łazienka - 4,21 m2

  • przedpokój - 10,03 m2

  • balkon - 2,84 m2



(zdjęcia dodane go ogłoszenia, są
zdjęciami poglądowymi)



Mieszkanie ma balkon i jest już oddane do użytku.

Do ceny należy doliczyć miejsce postojowe w hali garażowej.

w inwestycji



  • windy

  • domofon

  • wewnętrzny plac zabaw

  • co miejskie




To miejsce, które daje Ci spokój, komfort i codzienną wygodę.




Dodatkowo

pomagamy bezpłatnie w uzyskaniu najkorzystniejszej oferty kredytu hipotecznego
możliwość wykończenia mieszkania pod klucz


Spełnij marzenia o nowym mieszkaniu.
Nie czekaj, zarezerwuj mieszkanie już teraz.

Monika Skotarczak. +48798601102

ZERO prowizji, brak PCC

...
Oferta wystawiona przez Biuro nieruchomości Falcon Estate.
Prezentowane w serwisie oferty nie stanowią oferty handlowej w rozumieniu art. 66 Kodeksu Cywilnego i mogą być nieaktualne.

Plany Nieruchomości

Kontakt do opiekuna:

Falcon Estate

Monika Skotarczak
Nieprawidłowy adres E-mail
Mapa

Strona korzysta z plików cookie w celu realizacji usług zgodnie z Polityką prywatności. Możesz określić warunki przechowywania lub dostępu do cookie w Twojej przeglądarce.