2 pokoje, balkon, zieleń, dobra komunikacja

lokalizacja: Poznań, Jasielska

441 145,60 PLN

12 040,00 PLN

Opis nieruchomości

Ogłoszenie sprzedaży 2 pokojowego mieszkania z balkonem w Poznaniu


Zadzwoń i umów się na obejrzenie inwestycji +48798601102



  • Bezpośrednio od dewelopera

  • Brak PCC

  • Bez prowizji






Lokalizacja

Podolany, to lokalizacja zapewniająca bliskość terenów zielonych, a jednocześnie jest dobrze skomunikowana z centrum.



  • autobus - 1 minuta

  • przychodnia - 5 minut

  • tereny zielone - 5 minut

  • szkoła - 5 minut

  • sklepy - 1 minuta









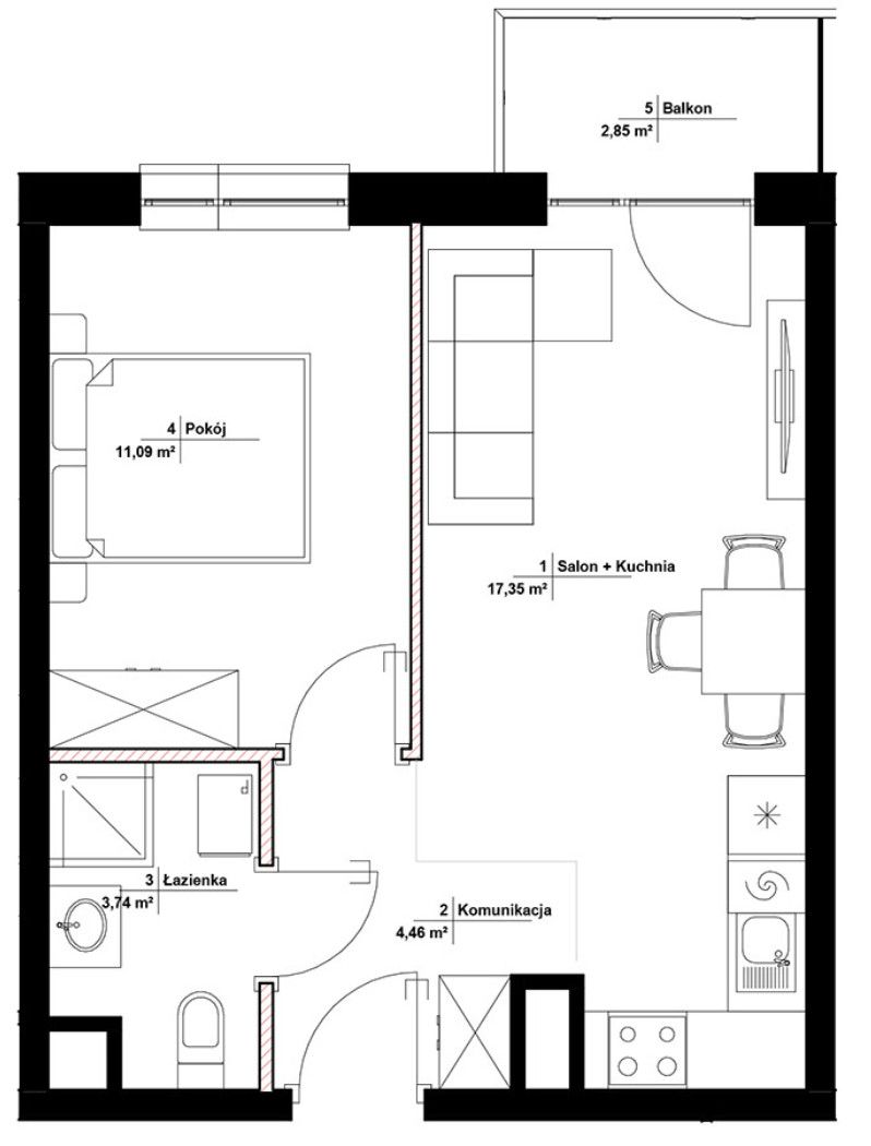
Układ mieszkania


  • salon + aneks kuchenny - 17,71 m2

  • pokój - 11,09 m2

  • łazienka - 3,74 m2

  • przedpokój - 4,10 m2

  • balkon - 2,85 m2





(zdjęcia dodane go ogłoszenia, są
zdjęciami poglądowymi)



w inwestycji


  • windy

  • domofon

  • monitoring

  • wewnętrzny plac zabaw

  • CO miejskie





To miejsce, które daje Ci spokój, komfort i codzienną wygodę.


Termin oddania: I kwartał 2026

Do ceny należy doliczyć miejsce postojowe w hali garażowej.



Spełnij marzenia o nowym mieszkaniu.
Nie czekaj. Zarezerwuj mieszkanie już teraz.


Monika Skotarczak. +48798601102

ZERO prowizji, brak PCC

...
Oferta wystawiona przez Biuro nieruchomości Falcon Estate.
Prezentowane w serwisie oferty nie stanowią oferty handlowej w rozumieniu art. 66 Kodeksu Cywilnego i mogą być nieaktualne.

Plany Nieruchomości

Kontakt do opiekuna:

Falcon Estate

Monika Skotarczak
Nieprawidłowy adres E-mail
Mapa

Strona korzysta z plików cookie w celu realizacji usług zgodnie z Polityką prywatności. Możesz określić warunki przechowywania lub dostępu do cookie w Twojej przeglądarce.